House in Novigrad - under construction
- Code : 00036
- Location : Novigrad
- Building size : 146 m2
- Lot size : 250 m2
- Garden size : 100.00 m2
- Distance from center : 600 m
- Distance from sea : 600 m
600.000 € 649.000 €
FEATURES
- Number of bedrooms : 3
- Number of rooms : 4
- Number of bathrooms : 3
- Number of toilets : 1
- Seaview : Yes
- Parking : Yes
- Air conditioning : Yes
- Swimming pool : Yes
- Energy efficiency : Not specified
- Year of construction : 2025
All data on these websites are presented for information purposes only, before any conclusion or activity based on data from these pages, all information must be checked in our agency.
DESCRIPTION
A beautiful terraced house in a perfect position with a wonderful view.
The ground floor of the house consists of a kitchen, a dining room, and a living room that connects to the 13 m2 pool, which is partially covered. Also on the ground floor there is 1 bedroom with a bathroom that has access to a 50 m2 garden where a summer kitchen and a veranda can be built. A technical room or storage room is also located on the ground floor of the house and is connected to the kitchen.
The total size of the ground floor is 62.57 m2.
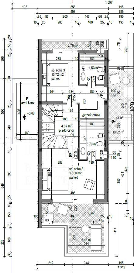
The first floor of the house has 2 bedrooms, one of which has a walk-in closet, a bathroom and two terraces, one of which is 2.7 m2 and the other 10.50 m2. The second room has a bathroom and a terrace of 13.50 m2 with a sea view.
The total size of 1 floor is 52.67 m2
The third floor extends through the entire surface of the house and is intended for a summer kitchen, a veranda, a sunbathing area with a jacuzzi and a shower.
We are at your disposal for any additional questions.
